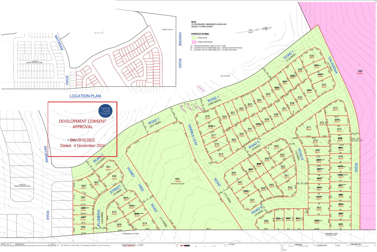
924 Green Pk Parade Woongarrah - Central Coast

House

924 Green Pk Parade Woongarrah - Central Coast

$995,750

Beds: 4
Garage: 2
Baths: 3
Floors: 1
Area: 193.9
Lot size: 359
Status: Open
Type: Single or Double

$547,000

Build Price

$448,750

Land Price

$850 to $950 pw

Rental Price

4.4%

Rental Yield

Growth over 5yr 25.3%

Growth

No

SMSF

March 2026

Registation

Upgrades

  • Provide hinged security screen doors to front and rear entry laundry door, where applicable and drawn.
  • Provide Install ducted air conditioning system with day / night zoning to suite dwelling design.
  • Provide and install upgraded front feature door in lieu of standard inclusion
  • Provide alfresco under main roof with decorative spray finished concrete floor

Amenities & Features

Woongarrah_Central Coast